Angel Island là dự án KĐT du lịch tại đảo Nhơn Phước, được định vị là khu đô thị sang trọng với môi trường sống biệt lập và tiện ích đẳng cấp. Do đó, các sản phẩm biệt thự, shophouse tại đây cũng được thiết kế theo phong cách sang trọng xứng tầm, đi kèm với hệ thống điều khiển nhà ở thông minh.
Thiết kế Elite Villa tại dự án Angel Island
Hệ thống điều khiển thông minh tại Elite Villa:
- Hệ thống điều khiển thông minh các thiết bị điện và ánh sáng trong nhà
- Tủ lạnh thông minh có màn hình cảm ứng
- Vòi rửa tay cảm ứng
- Hệ thống màn điều khiển tự động
- Máy pha cafe điều khiển bằng điện thoại thông minh
- Hệ thống khóa cửa tự động

Phối cảnh mặt trước và hồ bơi Elite Villa tại dự án Angel Island.

Phối cảnh mặt trước và hồ bơi Elite Villa tại dự án Angel Island.

Phối cảnh Elite Villa tại dự án Angel Island.

Phối cảnh Elite Villa tại dự án Angel Island.

Phối cảnh phòng khách Elite Villa tại dự án Angel Island.

Phối cảnh phòng ăn và bếp của Elite Villa tại dự án Angel Island.

Phối cảnh phòng ngủ của Elite Villa tại dự án Angel Island.

Phối cảnh phòng ngủ của Elite Villa tại dự án Angel Island.

Phối cảnh phòng tắm của Elite Villa tại dự án Angel Island.

Phối cảnh Elite Villa tại dự án Angel Island.

Mặt bằng tầng trệt Elite Villa tại dự án Angel Island.

Phối cảnh lầu 1 Elite Villa tại dự án Angel Island.

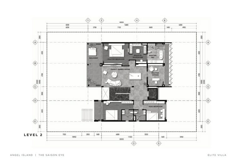
Phối cảnh lầu 2 Elite Villa tại dự án Angel Island.
Thiết kế Garden Villa tại dự án Angel Island
Hệ thống điều khiển thông minh tại Garden Villa:
- Hệ thống điều khiển ánh sáng thông minh
- Tủ lạnh thông minh có màn hình cảm ứng
- Vòi rửa tay cảm ứng
- Hệ thống màn điều khiển tự động
- Máy pha cà phê điều khiển bằng điện thoại thông minh
- Hệ thống khóa cửa tự động
- Hệ thống máy hút khói tích hợp bếp từ

Phối cảnh mặt trước Garden Villa tại dự án Angel Island.

Phối cảnh sân Garden Villa tại dự án Angel Island.

Phối cảnh phòng khách Garden Villa tại dự án Angel Island.

Phối cảnh phòng ăn và bếp Garden Villa tại dự án Angel Island.

Phối cảnh phòng ngủ Garden Villa tại dự án Angel Island.

Phối cảnh phòng ngủ Garden Villa tại dự án Angel Island.

Phối cảnh phòng tắm Garden Villa tại dự án Angel Island.

Phối cảnh sân thượng Garden Villa tại dự án Angel Island.

Mặt bằng tầng trệt Garden Villa tại dự án Angel Island.

Mặt bằng lầu 1 Garden Villa tại dự án Angel Island.

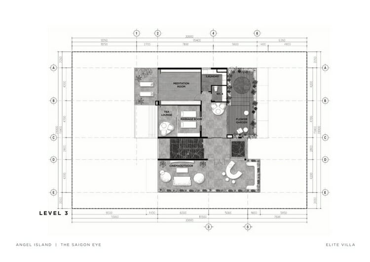
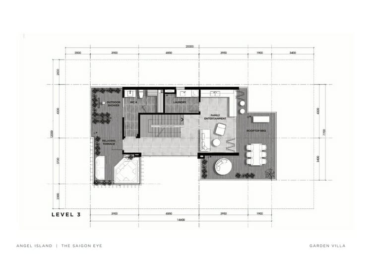
Mặt bằng lầu 2 Garden Villa tại dự án Angel Island.
Thiết kế Shophouse tại dự án Angel Island

Phối cảnh dãy shophouse tại dự án Angel Island.

Phối cảnh dãy shophouse tại dự án Angel Island.

Mặt bằng tầng trệt shophouse tại dự án Angel Island.

Mặt bằng lầu 1, 2, 3 và mái shophouse tại dự án Angel Island.
Bạn vừa xem qua bài viết Thiết kế shophouse, biệt thự tại dự án Angel Island. Nếu bạn cần hỗ trợ thêm thì hãy liên hệ ngay với https://giagocchudautu.com/ để được tư vấn trực tiếp.
Ngoài ra, để biết chi tiết thông tin về dự án Angel Island, bạn cũng có thể tham khảo thông tin tại đây:






