Green Home Quy Nhơn
Green Home Quy Nhơn dự án đất nền nhà phố và biệt thự do Công ty TNHH Đầu tư và Xây dựng Kim Cúc phát triển và chủ đầu tư. Khi nào Công ty TNHH Đầu tư và Xây dựng Kim Cúc mở bán dự án? Quy hoạch tổng quan dự án Green Home Quy Nhơn ra sao? mua đầu tư TỐT không?
Bài viết sau, Giagocchudautu.com & cộng sự sẽ chia sẻ thông tin cập nhật mới nhất & góc nhìn người trong cuộc về dự án được mong đợi nhất tại Quy Nhơn này.

Tổng quan Green Home Quy Nhơn
| Tên dự án | Green Home Quy Nhơn |
| Vị trí | Đường Quốc lộ 1D, TP.Quy Nhơn, Bình Định |
| Chủ đầu tư | Công ty TNHH Đầu tư và Xây dựng Kim Cúc |
| Loại sản phẩm | Nhà phố, biệt thự |
| Diện tích dự án | 107,3ha |
| Diện tích | 5x23m, 7x19m, 8x23m, 8x19m, … |
| Tiện ích | hệ thống trung tâm thương mại, siêu thị, công trình dịch vụ, trường học, công viên cây xanh,… |
| Pháp lý | Sổ hồng |
| Giá bán dự kiến | 27 triệu/m2 |
| Đợn vị phân phối | ☎ Hotline 24/7 : 0919.620.880 |
Chủ đầu tư Green Home Quy Nhơn là ai ?
Dự án Green Home Quy Nhơn do Công ty TNHH Đầu tư và Xây dựng Kim Cúc làm chủ đầu tư và phát triển.
Công ty TNHH Đầu tư và Xây dựng Kim Cúc Là chủ đầu tư dự án cải tạo hồ sinh thái Đống Đa Quy Nhơn (dự án đạt được Giải thưởng Kiến trúc quốc tế 2A tại Istanbul, Thổ Nhĩ Kỳ – 2015 (lọt vào chung kết) – Giải thưởng Kiến trúc Sao Biển khu vực miền Trung- Tây Nguyên – 2015 (giải Ba).
- Tên giao dịch: CÔNG TY ĐT & XD KIM CÚC
- Mã số thuế: 4100713629
- Địa chỉ: Khu đô thị xanh Green Home, quốc lộ 1D, Phường Ghềnh Ráng, Thành phố Quy Nhơn, Bình Định.
- Đại diện pháp luật: Nguyễn Thị Kim Cúc
- Ngày cấp giấy phép: 21/05/2008
- Ngày hoạt động: 01/06/2008 (Đã hoạt động 09 năm).
Vị trí dự án Green Home Quy Nhơn
Vị trí dự án Green Home Quy Nhơn có vị trí cửa ngõ phía nam của thành phố Quy Nhơn, tỉnh Bình Định, thuộc phường Ghềnh Ráng và phường Quang Trung. Từ dự án Green Home Quy Nhơn có khả năng dễ dàng đi đến các điểm du lịch giải trí xung quanh, như khu mộ Hàn Mặc Tử, học viện võ thuật Tây Sơn, Trung tâm gặp gỡ các nhà khoa học quốc tế…

- Green Home Quy Nhơn cách 5 phút ==> Metro Quy Nhơn, Kim Cúc Plaza, Bến xe Quy Nhơn, Bệnh viện Quân Đội
- Dự án Green Home Quy Nhơn Cách 1.2km ==> Trường Đại học Quy Nhơn
- Khu đô thị xanh Green Home Quy Nhơn cách 1.1km ==> Cụm khách sạn Hải Âu, Hoàng Yến, Bình Dương
- Cách 1.1Km ==> Resort Hoàng Anh, KDL biển Ghềnh Ráng
Nằm ngay trên lưng núi Vũng Chua, Green Home Quy Nhơn sẽ mang đến cho dân sinh tại chỗ này bầu không khí mát lành như phố Núi Đà Lạt nhưng lại là ngay tại trung tâm phố biển miền Trung. Vì thế, Green Home Quy Nhơn không chỉ đơn giản là nơi hội tụ mua sắm, vui chơi vui chơi với rất nhiều thương hiệu nổi tiếng, mà còn là 1 không gian sinh thái, với điều kiện tự nhiên, phong cảnh tự nhiên của núi rừng, thích hợp cho nhu cầu nghỉ dưỡng, giải trí, chiêm nghiệm cuộc sống hiện đại xanh.
Tiện ích tại Green Home Quy Nhơn
Dự án Green Home Quy Nhơn được quy hoạch, xây dựng theo phong cách Nhật Bản, không chỉ chú tâm đến môi trường sống. Chủ đầu tư Green Home Quy Nhơn còn dành nhiều tâm huyết, diện tích đất cũng như nguồn vốn vào xây dựng hệ thống tiện ích nội khu khép kín với rất đầy đủ các công năng phục vụ nhu cầu của người dân như:
- Công viên cây xanh
- Con đường hoa
- Hồ bơi
- Sân Tennis
- Chuỗi nhà hàng
- Khu nhà phố thương mại
- Hệ thống bảo vệ 24/24
- Hệ thống camera an ninh.

Không có gì bất ngờ khi dự án Green Home Quy Nhơn thừa hưởng toàn bộ các tiện ích từ căn bản đến cao cấp nhất. Bởi lẽ Khu đô thị xanh Green Home Quy Nhơn mang trong mình sứ mệnh dẫn đầu trong công việc phát triển và nâng tầm thành phố Quy Nhơn.
Green Home Quy Nhơn liền kề siêu thị Mega Mart, siêu thị BigC, siêu thị điện máy Chợ Lớn, đối diện bến xe Quy Nhơn, cách bện viện đa khoa Quy Hòa 100m.
Green Home Quy Nhơn cách bãi tắm Hoàng Hậu – khu du lịch Gềnh Ráng chỉ 500 mét…

Mặt bằng và thiết kế dự án Green Home Quy Nhơn
Mặt bằng dự án Green Home Quy Nhơn được quy hoạch xây dựng trên khu đất có tổng diện tích 107,3ha, Green Home là một khu phức hợp bao gồm
- khu trung tâm thương mại 7.071m2;
- Khu nhà phố cao cấp 12.905m2;
- Khu biệt thự trên núi 31.535m2;
- Khu chung cư cao cấp 2.412m2;
- Khu siêu thị Metro: 30.000m2;
- Khu Trường học quốc tế: 10.903m2;
- Công trình dịch vụ, công cộng: 2.763m2;
- Cây xanh cảnh quan: 91.110m2…

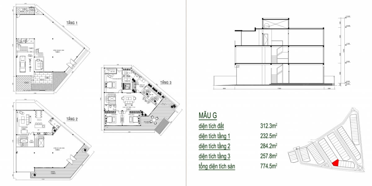
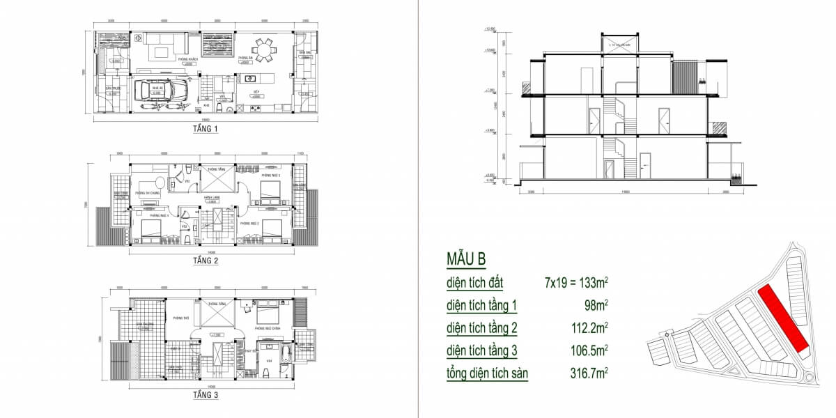
Các căn nhà phố Green Home Quy Nhơn liền kề có diện tích đa dạng từ 5x23m, 7x19m, 8x23m, 8x19m, biệt thự sườn núi Green Home Quy Nhơn có diện tích từ 751m2 – 1157m2.

Khu đô thị Xanh Green Home Quy Nhơn được phân tích sẽ tạo nên điểm nhấn trong quy hoạch phát triển TP. Quy Nhơn (Bình Định), cũng như khẳng định bước tiến vượt trội và tâm huyết của chủ đầu tư dự án.
Giá bán đất nền Green Home Quy Nhơn
Giá bán đất nền Green Home Quy Nhơn từ 27 triệu/m2.
Để tạo điện kiện tốt hơn cho những người mua nhà, chủ đầu tư Green Home Quy Nhơn đưa ra mức định giá đặt chỗ chỉ 100 triệu đồng và cam đoan hoàn tiền đặt giữ chỗ 100% nếu quý khách hàng không chọn lựa được căn vừa lòng khi mở bán.
Ngoài ra, công ty còn hỗ trợ vay ngân hàng với gói khuyến mãi tại Ngân hàng BIDV, hoàn tiền 100% nếu quý khách hàng không vay được. Người mua nhà cũng khá được cam đoan bàn giao nhà đúng thời hạn, với pháp lý sổ hồng vĩnh viễn.
Xem thêm giá bán đất nền Quy Nhơn các dự án xung quanh
- Dự án Takashi Ocean Suite
- Dự án Kỳ Co Gateway
- Dự án Nhơn Hội New City
- Dự án FLC Miami District
- Dự án FLC Lux City
- Dự án FLC Crown Villa
- Dự án Maia Quy Nhơn
- Dự án Casa Marina
- Dự án Movenpick Quy Nhơn
- Dự án Hải Giang Merry Land
Tiến độ dự án Green Home Quy Nhơn

Q&A dự án Green Home Quy Nhơn
- Vị trí dự án Green Home Quy Nhơn ở đâu?
Green Home Quy Nhơn có địa chỉ tại đường Quốc lộ 1D, TP.Quy Nhơn, Bình Định.
- Giá bán đất nền Green Home Quy Nhơn bao nhiêu?
Giá bán đất nền Green Home Quy Nhơn từ 27 triệu/m2.
- Chủ đầu tư dự án Green Home Quy Nhơn là ai?
Chủ đầu tư dự án Green Home Quy Nhơn là Công ty TNHH Đầu tư và Xây dựng Kim Cúc.
Trên đây là bài viết chia sẻ thông tin dự án đất nền Green Home Quy Nhơn, thực hiện bởi Giagocchudautu.com. Hy vọng bài viết Green Home Quy Nhơn mang đến những thông tin hữu ích với quý khách hàng.
